Casa aparellada de 4 dormitoris, amb jardí privat i piscina comunitària en venda a poca distància a peu del centre i de la platja de Llafranc.
Característiques principals de la casa / vil·la
- Vistes a les muntanyes
- Terrassa
- Piscina
- Jardí
- Garatge
- Llum natural
- Aparcament
- Zona chill-out
- Vistes
- Traster
- Sistema d'alarma
- Seguretat
- S'accepten mascotes
- Renovat
- Finestres de doble vidre
- Exterior
- Cuina equipada
- Calefacció
- Balcó
- Armaris encastats
- Aire condicionat
- A prop del transport públic
- Plànol 200m²
- Superfície construïda 200m²
- Superfície útil 145m²
El que heu de saber d'aquesta casa / vil·la
A Llafranc, trobem aquesta casa aparellada de dues plantes, amb jardí privat i piscina comunitària, situada a una tranquil·la urbanització a pocs minuts a peu del centre i de la platja.
L'habitatge, amb orientació sud-est, es distribueix en dues plantes. A la planta principal, hi ha el saló-menjador amb sortida a la terrassa. A la mateixa planta, s'ubiquen la cuina, el safareig i un dormitori amb bany privat.
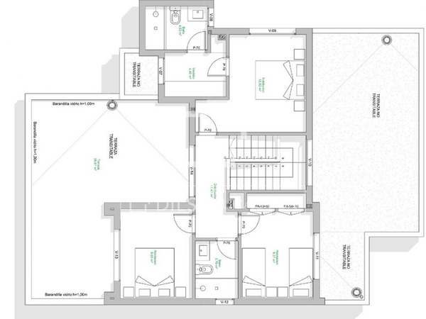
A la planta superior se situa el dormitori principal, amb bany privat i accés a la terrassa. També en aquesta planta hi ha dos dormitoris més i un bany complet.
La propietat disposa a més de tres places de garatge i un traster a l'aparcament subterrani de la comunitat.
Els exteriors inclouen un jardí privat amb porxo, perfecte per a sopars exteriors, i una piscina comunitària ideal per als mesos d'estiu.
La casa compta amb electrodomèstics, finestres de doble vidre, sistema d'aire condicionat per bomba de calor i alarma de seguretat, de manera que ofereix confort i tranquil·litat durant tot l'any.
Es tracta d'un habitatge ideal per a una família com a segona residència, gràcies a la seva ubicació al costat de la platja de Llafranc. No dubteu a contactar-nos si voleu més informació o concertar una visita.
Distribució de la casa / vil·la
Planta superior
- Dormitori amb bany privat i accés a la terrassa
- Dormitori amb accés a la terrassa
- Dormitori
- Bany complet
Planta principal
- Saló-menjador amb sortida al jardí
- Cuina
- Safareig
- Dormitori amb bany privat
Planta subterrània
- Garatge per a tres cotxes
- Traster
Llafranc, Costa Brava: Ubicació y localitzaciò d'aquesta propietat
L'habitatge es troba en una zona residencial tranquil·la, a pocs minuts a peu del centre i de la platja de Llafranc, un dels pobles costaners més emblemàtics i cobejats de la Costa Brava. A més, és a tocar de tots els serveis locals i de la zona d'oci d'aquest pintoresc poble pesquer del Baix Empordà.
Se situa a 120 quilòmetres de Barcelona i del seu aeroport internacional, a 50 quilòmetres de la històrica ciutat medieval de Girona ia 75 quilòmetres de la frontera francesa.
Certificat d'eficiència energètica de aquest inmoble
Consum d'energia G : 277.5kWh/m²/any
Emissions E : 47kg CO₂/m²/any
AICAT: 13225
API: 4089 
- 2
- 3
- 4
- 5
- 6
- 7
- 8
- 9
- 10
- 11
- 12
- 13
- 14
- 15
- 16
- 17
- 18
- 19
- 20
- 21
- 22
- 23
- 24
- 25
- 26
- 27
- 28
- 29
- 30
- 31
- 32
- 33
- 34
- 35
- 36
- 37
- 38
- 39
- 40
- 41
- 42
- 43
Immobles similars Llafranc / Calella / Tamariu
No és exactament el que busca?








































































































































































































































































































